Description
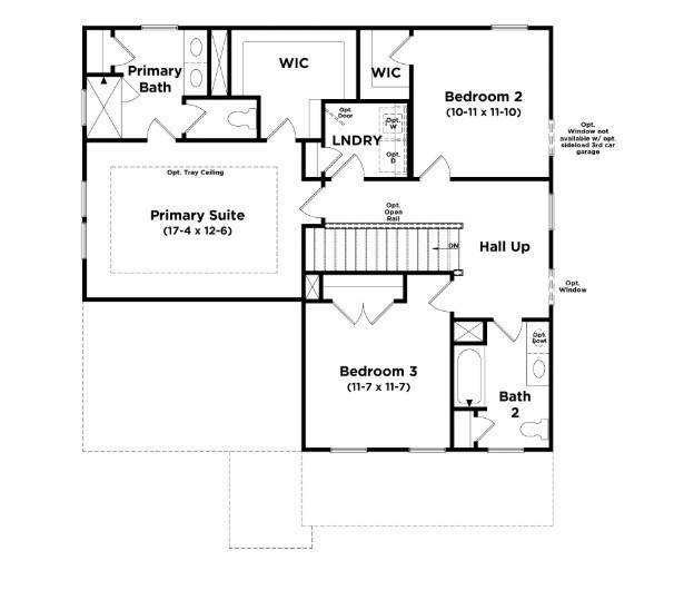
The Bedford Floor Plan is a welcoming two-story home thoughtfully designed to support comfortable, family-focused living. With three bedrooms, two and a half bathrooms, and a two-car garage, this home offers the perfect balance of shared gathering spaces and private retreats, giving everyone room to spread out while staying connected. On the main level, a versatile flex room provides valuable adaptability and can easily be transformed into a playroom, homework area, home office, or creative space. This flexible design allows the home to evolve alongside your family’s changing needs. The main living areas are arranged to encourage everyday interaction while maintaining a natural flow throughout the home. Upstairs, the primary bedroom serves as a private retreat for parents, offering comfort, privacy, and generous space to unwind at the end of the day. Two additional bedrooms provide ideal accommodations for children or guests, while a centrally located bathroom ensures convenience for the entire household. A standout feature of the Bedford is the spacious bonus room, offering endless possibilities for customization. Whether used for movie nights, a game room, a second family lounge, or a hobby space, this additional living area adds exceptional flexibility and enhances the home’s livability. Additional highlights include thoughtful storage throughout, a functional layout designed for busy schedules, and spaces that support both relaxation and productivity. With its practical design, flexible living areas, and room to grow, the Bedford Floor Plan is perfectly suited for creating lasting family memories in a home that truly works for your lifestyle. Don’t miss this opportunity! Incentives are at $5,000 with preferred lender. Lot 009
-
3BEDS
-
N/AACRES
-
2BATHS
-
11/2 BATHS
-
2,225SQFT
-
$176$/SQFT
School Information
Description
The Bedford Floor Plan is a welcoming two-story home thoughtfully designed to support comfortable, family-focused living. With three bedrooms, two and a half bathrooms, and a two-car garage, this home offers the perfect balance of shared gathering spaces and private retreats, giving everyone room to spread out while staying connected. On the main level, a versatile flex room provides valuable adaptability and can easily be transformed into a playroom, homework area, home office, or creative space. This flexible design allows the home to evolve alongside your family’s changing needs. The main living areas are arranged to encourage everyday interaction while maintaining a natural flow throughout the home. Upstairs, the primary bedroom serves as a private retreat for parents, offering comfort, privacy, and generous space to unwind at the end of the day. Two additional bedrooms provide ideal accommodations for children or guests, while a centrally located bathroom ensures convenience for the entire household. A standout feature of the Bedford is the spacious bonus room, offering endless possibilities for customization. Whether used for movie nights, a game room, a second family lounge, or a hobby space, this additional living area adds exceptional flexibility and enhances the home’s livability. Additional highlights include thoughtful storage throughout, a functional layout designed for busy schedules, and spaces that support both relaxation and productivity. With its practical design, flexible living areas, and room to grow, the Bedford Floor Plan is perfectly suited for creating lasting family memories in a home that truly works for your lifestyle. Don’t miss this opportunity! Incentives are at $5,000 with preferred lender. Lot 009
Related Properties
Properties marked with the IDX logo are provided courtesy of the RealTracs Internet Data Exchange Program. Some or all of the listings may not belong to the firm whose website is being visited (The Miles Team | Compass Tennesee, LLC, 615-375-3575). IDX information © 2026 MTRMLS, Inc. Information is believed to be accurate but not guaranteed by the MLS or The Miles Team | Compass Tennesee, LLC. IDX information is provided exclusively for consumers' personal, non-commercial use and may not be used for any purpose other than to identify prospective properties consumers may be interested in purchasing. Data last updated 2026-03-16T17:09:21.74.
Based on information submitted to the MLS GRID as of 2026-03-16T17:09:21.74. All data is obtained from various sources and may not have been verified by broker or MLS GRID. Supplied Open House Information is subject to change without notice. All information should be independently reviewed and verified for accuracy. Properties may or may not be listed by the office/agent presenting the information.
Click here for MLS GRID DMCA Notice

Offered by DRB Group Tennessee: .
Copyright 2026 RealTracs, Inc. Information Is Believed To Be Accurate But Not Guaranteed. Listings courtesy of Realtracs MLS as distributed by MLS GRID.