Description
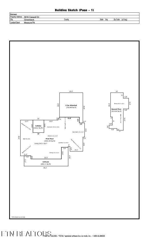
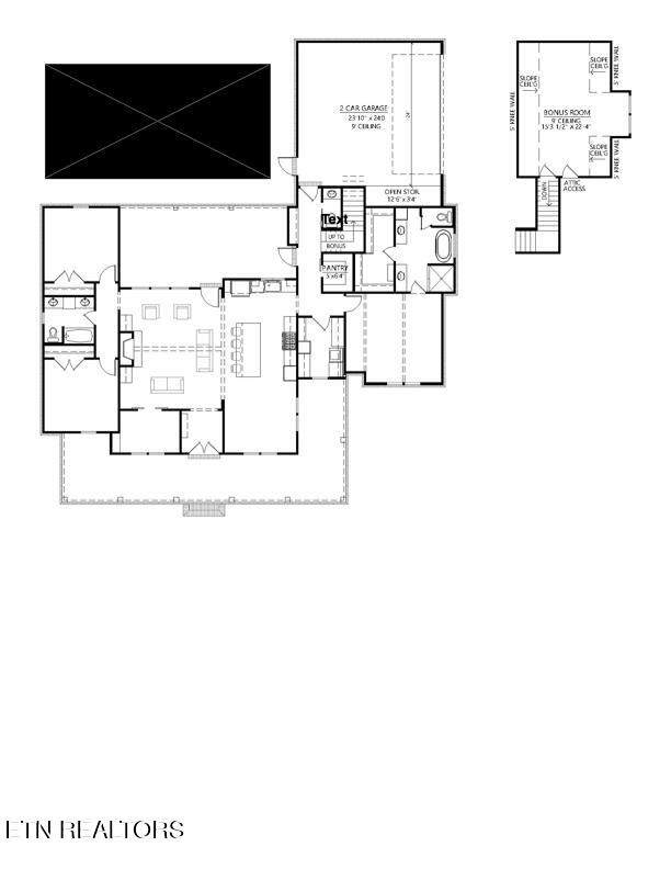
Seller has added 476 SF to the original plan and thus the increase in price. This thoughtfully designed 3,156 sq ft new construction home is currently underway and offers the perfect blend of modern comfort, efficient layout, and current style. With construction in progress, buyers still have the opportunity to personalize select finishes and make this home truly their own. Spacious main level with an open concept living, dining, and kitchen area ideal for everyday living and entertaining. Split bedroom layout providing privacy for the primary suite. Generously sized primary bedroom with ensuite bath and walk in closet. Two additional main level bedrooms with convenient access to a full bath. Dedicated laundry/mudroom connecting to the garage. An added feature is the 15x14 heated/cooled sunroom on the back of the house. Generously sized covered front porch and rear patio for outdoor enjoyment. Spacious oversized 702 sq ft 2 car garage. A huge highlight of this home above the 2 car garage is 614 sq ft finished bonus room w/full bathroom perfect for: a fourth bedroom, home office, media room, playroom, hobby or fitness space. As construction progresses, buyers may have the opportunity to choose finishes such as flooring, cabinetry, countertops, paint colors, and lighting, depending on build stage. With a total of 3,156 sq ft of usable space, this home offers the square footage and flexibility all wrapped in a brand new, energy efficient build. It's an ideal fit for families, work from home lifestyles, or anyone wanting a fresh start in a thoughtfully crafted home.
-
3BEDS
-
0.75ACRES
-
3BATHS
-
11/2 BATHS
-
3,156SQFT
-
$285$/SQFT
School Information
Description
Seller has added 476 SF to the original plan and thus the increase in price. This thoughtfully designed 3,156 sq ft new construction home is currently underway and offers the perfect blend of modern comfort, efficient layout, and current style. With construction in progress, buyers still have the opportunity to personalize select finishes and make this home truly their own. Spacious main level with an open concept living, dining, and kitchen area ideal for everyday living and entertaining. Split bedroom layout providing privacy for the primary suite. Generously sized primary bedroom with ensuite bath and walk in closet. Two additional main level bedrooms with convenient access to a full bath. Dedicated laundry/mudroom connecting to the garage. An added feature is the 15x14 heated/cooled sunroom on the back of the house. Generously sized covered front porch and rear patio for outdoor enjoyment. Spacious oversized 702 sq ft 2 car garage. A huge highlight of this home above the 2 car garage is 614 sq ft finished bonus room w/full bathroom perfect for: a fourth bedroom, home office, media room, playroom, hobby or fitness space. As construction progresses, buyers may have the opportunity to choose finishes such as flooring, cabinetry, countertops, paint colors, and lighting, depending on build stage. With a total of 3,156 sq ft of usable space, this home offers the square footage and flexibility all wrapped in a brand new, energy efficient build. It's an ideal fit for families, work from home lifestyles, or anyone wanting a fresh start in a thoughtfully crafted home.
Properties marked with the IDX logo are provided courtesy of the RealTracs Internet Data Exchange Program. Some or all of the listings may not belong to the firm whose website is being visited (The Miles Team | Compass Tennesee, LLC, 615-375-3575). IDX information © 2026 MTRMLS, Inc. Information is believed to be accurate but not guaranteed by the MLS or The Miles Team | Compass Tennesee, LLC. IDX information is provided exclusively for consumers' personal, non-commercial use and may not be used for any purpose other than to identify prospective properties consumers may be interested in purchasing. Data last updated 2026-03-16T16:09:07.38.
Based on information submitted to the MLS GRID as of 2026-03-16T16:09:07.38. All data is obtained from various sources and may not have been verified by broker or MLS GRID. Supplied Open House Information is subject to change without notice. All information should be independently reviewed and verified for accuracy. Properties may or may not be listed by the office/agent presenting the information.
Click here for MLS GRID DMCA Notice

Offered by Realty Executives Associates: .
Copyright 2026 RealTracs, Inc. Information Is Believed To Be Accurate But Not Guaranteed. Listings courtesy of Realtracs MLS as distributed by MLS GRID.